» Haus-Grundrisse: Welchen findet Ihr besser?

"Ich bin kein Nazi, aber..."Neuen Thread eröffnenNeue Antwort erstellenWien: männliche Studienteilnehmer gesucht (OT)
<12
45101112>
AutorNachricht
Administrator 

Name: Marc
Geschlecht:
Anmeldedatum: 28.08.2004
Beiträge: 52434
Wohnort: Lohmar


Meine eBay-Auktionen:
01.04.2014, 08:58
zitieren

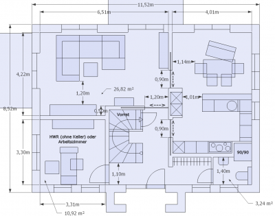
GERWildcat3. Bauart der Treppe: Wenn du eine schwebende Treppe einsetzt (Also ohne Haltekonstruktion an den Seiten), ist die Treppe an sich als Garderobe sehr gut integrierbar. Dafür kann das Gästeklo weiter nach vorne Richtung Eingangstür rücken und da wo das Klo jetzt ist, gäbe es Raum für ein kleines Vorratsräumchen/Kühlraum/Whatever. Mit Keller wird das natürlich nicht funktionieren, aber da lässt sich das immernoch so ähnlich lösen: Einfach in die Treppenlücke (in dem U) eine Garderobe einführen.

Klasse Idee! Das probiere ich mal aus. Die Garderobe könnte tatsächlich problemlos "unter" die Treppe, da freischwebend. Dann gibt es ja keinen Kellerzugang.



Verfasst am: 01.04.2014, 10:23
zitieren

GERWildcatBtw: Mal drüber nachgedacht obs n kompletter Keller sein muss? Gibt ja immerhin auch die Variante mit der Teil-Unterkellerung...

Das Haus ist schon recht "klein". Als ich nach einem halben Keller fragte, musste die erst nach dem Umrechnungsschlüssel suchen :hrhr:

Wenn man den nur etwas kleiner macht, dann spart man denke ich nicht viel. Wenn ich mich recht erinnere, dann ab 90 m² Grundfläche 600,- EUR pro m² und darunter 700,- EUR. Damit würden sich also ergeben:

Keller M
11,52 x 8,52 x 600,- EUR = 58.890,- EUR

Keller S
8,01 x 8,52 x 700,- EUR = 47.771,- EUR

Keller XS
8,01 x 4,60 x 800,- EUR = 29.476,- EUR

XXS mit der Außenwand bündig zu beiden Treppenseiten spare ich mir jetzt mal :D

Die kleineren Keller würden dann z.B. so aussehen (da die Garage ca. 1,2 m unter dem Erdgeschoss-Niveau liegt, könnte man sogar Tageslichtfenster realisieren):


 
Kellergeschoss in Größe S.png
Kellergeschoss in Größe S.png - [Bild vergrößern]


 
Kellergeschoss in Größe XS.png
Kellergeschoss in Größe XS.png - [Bild vergrößern]

12x bearbeitet
pn email
General 

Geschlecht:
Fahrzeug: CRX DEL SOL
Anmeldedatum: 16.01.2010
Beiträge: 2691
Wohnort: Neuwied
01.04.2014, 14:05
zitieren

Wo die frage mit der Treppe schon da ist...
je nach art der Schwebenden Treppe ist das nicht so einfach zu realisieren, denn teilweise sind da Haltevorrichtungen die mit ins Mauerwerk eingearbeitet. Da reichen nicht einfach 2 große Schrauben pro Stufe.
Außerdem: warum möchtest du eigentlich n U als Treppe haben? Das ist, sofern man keinen Keller hat aus meiner Sicht die platzverschwendenste Form.
wie wäre es mit nem L?
hab da mal was gepaintet, weiß aber nicht ob die Tür zum Arbeitszimmer drunter passt, müsste man die höhe der Stufen bis zu der Tür berechnen.Sollte das von den Maßen passen, wäre das aus meiner Sicht die beste Lösung, da man den Platz unter der Treppe besser nutzen kann als in nem U.


PS: durch das ganze Haus zu laufen um an den Kühlschrank zu gelangen, was zum trinken zu holen oder für nen kleinen Snack, halte ich persönlich zu krass. damit machst du dich ganz bestimmt unglücklich.
alleine wenn du vom OG die Treppe runter gehst, dann durchs Wohnzimmer, dann durch den Essbereich und dann erst an den Kühlschrank.... für mich wäre das nix.
Die Küche ist n zentraler Ort im Haus, ähnlich wie ein Wohnzimmer.diesen Ort in ne "Ecke" zu stecken halte ich für fatal


 
erdgeschoss_variante7.png
erdgeschoss_variante7.png - [Bild vergrößern]


pn
Administrator 

Name: Marc
Geschlecht:
Anmeldedatum: 28.08.2004
Beiträge: 52434
Wohnort: Lohmar


Meine eBay-Auktionen:
01.04.2014, 14:36
zitieren

Ich habe einen Querschnitt von einem Haus und da sehe ich eine Stufe gar nicht, d.h. die ist auf Höhe der Geschossdecke, dann kommt eine Stufe, die ist noch gut über dem Türrahmen und bereits die dritte Stufe liegt auf Höhe des Türrahmens:

 
Schnitt.png
Schnitt.png - Angeschaut: 580 mal


Verfasst am: 01.04.2014, 14:42
zitieren

Hier mal mit einer L-Treppe (ich habe alle vom Bauträger verfügbaren Versionen abgemalt ;)). Die Haustüre geht nicht mehr auf und die Türe zum Büro muss entweder kleiner sein oder die Wand muss verschoben werden:

 
2014-04-01 16_41_21-m310_035.skp - SketchUp.png
2014-04-01 16_41_21-m310_035.skp - SketchUp.png - [Bild vergrößern]

 1x  bearbeitet

Verfasst am: 01.04.2014, 14:48
zitieren

Jetzt die andere L-Form. Diesmal geht die Haustüre auf, aber dafür gibt es noch mehr Probleme beim Arbeitszimmer:

 
2014-04-01 16_47_12-m310_035.skp - SketchUp.png
2014-04-01 16_47_12-m310_035.skp - SketchUp.png - [Bild vergrößern]

Verfasst am: 01.04.2014, 14:51
zitieren

Aber selbst wenn man das nun so hinbekommt. Der offene Empfangsbereich wie bei der U-Treppe wäre verloren. Denn das L kannst Du ja nicht umdrehen. z.B. so:

 
2014-04-01 16_46_49-m310_035.skp - SketchUp.png
2014-04-01 16_46_49-m310_035.skp - SketchUp.png - [Bild vergrößern]

Verfasst am: 01.04.2014, 14:54
zitieren

Also das ginge schon, aber dann kommt man im Obergeschoss in der Empore raus und damit kann man die nicht mehr für einen zusätzlichen Raum zweckentfremden, was ohne Keller zwingend notwendig ist, weil ich dann oben das Arbeitszimmer benötige + 2 Kinderzimmer + Eltern + Bad. Ich erinnere hier noch mal an das OG V1:

Verfasst am: 01.04.2014, 14:58
zitieren

NUMMA EINSPS: durch das ganze Haus zu laufen um an den Kühlschrank zu gelangen, was zum trinken zu holen oder für nen kleinen Snack, halte ich persönlich zu krass. damit machst du dich ganz bestimmt unglücklich.
alleine wenn du vom OG die Treppe runter gehst, dann durchs Wohnzimmer, dann durch den Essbereich und dann erst an den Kühlschrank.... für mich wäre das nix.
Die Küche ist n zentraler Ort im Haus, ähnlich wie ein Wohnzimmer.diesen Ort in ne "Ecke" zu stecken halte ich für fatal

Guter Einwand. Was sagen die anderen dazu?

Vielleicht albern, aber ich habe mal gemessen. Es sind 7,71 m ab Treppe :D

Wobei ich natürlich einsehe, dass es nicht auf die Strecke ankommt, sondern auf die Räume, die man passiert.


 
2014-04-01 17_01_16-m310_035.skp - SketchUp.png
2014-04-01 17_01_16-m310_035.skp - SketchUp.png - [Bild vergrößern]

 1x  bearbeitet

Verfasst am: 01.04.2014, 15:55
zitieren

Hier mal Variante 8. Im Grunde wie Variante 6, nur diesmal mit Schiebetür statt normaler Tür zur Küche und Vorratsraum unter der Treppe:


 
erdgeschoss_variante8.png
erdgeschoss_variante8.png - [Bild vergrößern]

 2x  bearbeitet
pn email
Gast 
21.08.2015, 05:53
zitieren

Mach mit!

Wenn Dir die Beiträge zum Thread "Haus-Grundrisse: Welchen findet Ihr besser?" gefallen haben oder Du noch Fragen hast oder Ergänzungen machen möchtest, solltest Du Dich gleich bei uns anmelden:



Registrierte Mitglieder genießen die folgenden Vorteile:
✔ kostenlose Mitgliedschaft
keine Werbung
✔ direkter Austausch mit Gleichgesinnten
✔ neue Fragen stellen oder Diskussionen starten
✔ schnelle Hilfe bei Problemen
✔ Bilder und Videos hochladen
✔ und vieles mehr...


Neuen Thread eröffnenNeue Antwort erstellen
<12
45101112>
Ähnliche BeiträgeRe:
Letzter Beitrag
Welchen Accord findet ihr "besser"? -> mobile.de-Links
Hallo, ich interessiere mich momentan für nen Familienauto.. tja, wer hätte das mal gedacht^^ Nun schaue ich halt etwas umher und bei der Marke HONDA denke ich an Accord und Legend. Zum Legend weiß ich quasi nichts.. da würde ich einen kaufen und...
Seite 2 [Accord ab 2008]von s-lab
12
785
05.10.2016, 10:43
s-lab
Welche Mattenkombi findet ihr besser?
Welche Mattenkombi findet ihr besser? Das ist ein Layout für Schwarze Fußmatten, mit Roter Umkettelung. Die Mitive werden Rot aufgeflockt. Die Kathügel-Matte unten am Bild ist ein Fake, da diese beim Beflocker schon liegt. Es dient nur zur groben...
[S2000]von lost-in-emotions
9
508
21.05.2006, 17:22
Chris 1985
 welche front findet ihr besser?
so leute jetzt hab ich mitlerweile mein auto fast lackierfertig vorbereitet , ein problem hab ich aber immer noch . welche front soll ich nehmen? Danke für eure...
Seite 2, 3 [Civic 92-95]von japanfreak
21
1.142
11.06.2006, 12:10
Lightning
 Mein Haus / Dein Haus
Hi, gestern wurde es offiziell. Das Grundstück für unseren Hausbau ist nun unser. Manche Premium-Mitglieder hatten es ja bereits mitbekommen, dass ich da dran war. Das ganze ist 715 m² groß und weitere 55 m² von einem Privatweg, aber der eher dem...
Seite 2 [Offtopic]von mgutt
18
2.441
23.09.2011, 20:31
mgutt
Haus ?
Haus habe ich nicht, sondern nur eine Laube. Bin aber damit auch zufrieden....
von buebchen
37
1.417
23.04.2012, 17:33
Rosenrot
Hypothek auf Haus
Hallo, ein Bekannter von mir überlegt derzeit, eine Hypothek auf sein Haus aufzunehmen und ich beschäftige mich gerade auch etwas mit dem Thema. Hat hier jemand Ahnung von dem Thema und kann den Kern nochmal auf den Punkt bringen? Ich habe öfter...
von Pflaumi
1
292
11.10.2011, 12:27
Kakaotrinker
Haus umbau
Da all meine Geschwistern nun außen Haus sind, dachten wir das ich jetzt dort einziehen. Wir wollen aus dem Haus zwei separat Wohnungen machen und ein Anbau machen. Ich such deshalb eine gute Freeware Software Hausbau/Umbau. Wenn ich schon mal...
[Offtopic]von memo-can
2
303
08.02.2012, 00:11
Virus27
Ein eigenes Haus
Hallo zusammen, ich hatte euch von meiner Freundin geschrieben, die im Kindergarten jedes Jahr die tollen Kinder-Partys ausrichtet. Sie ist jetzt auch schwanger und möchte mit ihrem Mann gerne ein eigenes Haus für die neue Familie haben. Die beiden...
von ChinaGirl
2
252
08.01.2013, 15:08
ChinaGirl
Autoradio im Haus benutzen
Hi Leute Ich hab ein kleines Problem. Ich möchte mir im Keller ein Radio einbauen und da ich noch ein Autoradio zuhause habe, soll es dieses werden . Die Stromversorgung will ich mit einem Universal Netzteil mit 12V hinbekommen,das dürfte...
von onkelkroete
1
900
03.02.2012, 16:58
Ralf
 Mein Haus mit Sketchup 2
Nachdem das Grundstück nun fest steht und mein erster Hausversuch mit Sketchup leider mangels Grundstücksgröße nicht umgesetzt werden kann jetzt mein 2....
[Offtopic]von mgutt
5
2.098
14.03.2012, 09:23
JDM_Joker
© 2004 - 2025 www.maxrev.de | Communities | Impressum |