» Haus-Grundrisse: Welchen findet Ihr besser?

"Ich bin kein Nazi, aber..."Neuen Thread eröffnenNeue Antwort erstellenWien: männliche Studienteilnehmer gesucht (OT)
<1231011
AutorNachricht
Administrator 

Name: Marc
Geschlecht:
Anmeldedatum: 28.08.2004
Beiträge: 52434
Wohnort: Lohmar


Meine eBay-Auktionen:
18.05.2015, 10:14
zitieren

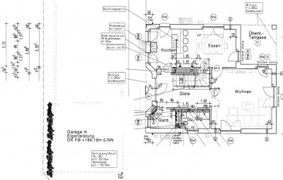
Im Erdgeschoss hat sich folgendes geändert:

  • geschlossene Holztreppe, aber mit offenem Geländer
  • Treppe nun unten eine Stufe länger und oben eine weniger, dadurch größerer Essbereich
  • alle Schiebetüren weg
  • Spüle in der Insel
  • mehr Platz zwischen Fenster für 90er Kochfeld
  • Küchenfenster höher und setzen weiter unten an, dadurch durchlaufende Arbeitsplatte
  • kleine Doppeltür ist geblieben (wir haben nie eine Antwort bekommen, ist mir jetzt aber auch egal)

Beim Obergeschoss gibt es nur marginale Änderungen:
  • Sichtschutzmauer bündig mit Badewanne
  • symmetrische Badewanne gewählt:
    http://www.reuter.de/villeroy-boch-my-art-duo-badewanne-l-180-b-80-h-50-cm-weiss-a46992.php
  • Spitzbodentreppe anstatt Vorbereitung auf feste Treppe, dafür Kind 1 Tür versetzt. Ich hoffe das passt, denn ich habe auch hier nie eine konkrete Antwort erhalten. Aussehen tut es nun so:

    Damit sollte es jetzt eigentlich möglich sein, die Spitzbodentreppe auch mal heruntergeklappt stehen zu lassen (und später evtl. sogar gegen eine feste zu ersetzen, ohne sich den Kopf zu stoßen)


 
erdgeschoss-final2.jpg
erdgeschoss-final2.jpg - [Bild vergrößern]


 
villeroy-boch-my-art-duo-badewanne-l-180-b-80-h-50-cm-weiss--vb-bq180mya2v_1a.jpg
villeroy-boch-my-art-duo-badewanne-l-180-b-80-h-50-cm-weiss--vb-bq180mya2v_1a.jpg - [Bild vergrößern]


 
2015-05-18 12_20_23-2015-05-18 12_06_24-0578_0001.pdf.png - Windows-Fotoanzeige.png
2015-05-18 12_20_23-2015-05-18 12_06_24-0578_0001.pdf.png - Windows-Fotoanzeige.png - [Bild vergrößern]


 
küchenplanung.jpg
küchenplanung.jpg - Angeschaut: 987 mal

 
2015-05-18 12_53_38-koje_10_nova_lack_731.jpg (530×273).png
2015-05-18 12_53_38-koje_10_nova_lack_731.jpg (530×273).png - Angeschaut: 987 mal

 
2380HW90.jpg
2380HW90.jpg - [Bild vergrößern]



Verfasst am: 04.06.2015, 12:17
zitieren

Wen es interessiert, hier mein Baublog:
http://stein-auf-stein.de/

Verfasst am: 21.08.2015, 05:53
zitieren

Ohne Gerüst sieht es schon viel besser aus:
http://stein-auf-stein.de/erstes-foto-ohne-geruest/


 
2015-08-21 07_52_15-Stein auf Stein _ das Viebrock-Häuschen wird bald fertig sein.png
2015-08-21 07_52_15-Stein auf Stein _ das Viebrock-Häuschen wird bald fertig sein.png - [Bild vergrößern]
pn email
Gast 
21.08.2015, 05:53
zitieren

Mach mit!

Wenn Dir die Beiträge zum Thread "Haus-Grundrisse: Welchen findet Ihr besser?" gefallen haben oder Du noch Fragen hast oder Ergänzungen machen möchtest, solltest Du Dich gleich bei uns anmelden:



Registrierte Mitglieder genießen die folgenden Vorteile:
✔ kostenlose Mitgliedschaft
keine Werbung
✔ direkter Austausch mit Gleichgesinnten
✔ neue Fragen stellen oder Diskussionen starten
✔ schnelle Hilfe bei Problemen
✔ Bilder und Videos hochladen
✔ und vieles mehr...


Neuen Thread eröffnenNeue Antwort erstellen
<1231011
Ähnliche BeiträgeRe:
Letzter Beitrag
Welchen Accord findet ihr "besser"? -> mobile.de-Links
Hallo, ich interessiere mich momentan für nen Familienauto.. tja, wer hätte das mal gedacht^^ Nun schaue ich halt etwas umher und bei der Marke HONDA denke ich an Accord und Legend. Zum Legend weiß ich quasi nichts.. da würde ich einen kaufen und...
Seite 2 [Accord ab 2008]von s-lab
12
785
05.10.2016, 10:43
s-lab
Welche Mattenkombi findet ihr besser?
Welche Mattenkombi findet ihr besser? Das ist ein Layout für Schwarze Fußmatten, mit Roter Umkettelung. Die Mitive werden Rot aufgeflockt. Die Kathügel-Matte unten am Bild ist ein Fake, da diese beim Beflocker schon liegt. Es dient nur zur groben...
[S2000]von lost-in-emotions
9
508
21.05.2006, 17:22
Chris 1985
 welche front findet ihr besser?
so leute jetzt hab ich mitlerweile mein auto fast lackierfertig vorbereitet , ein problem hab ich aber immer noch . welche front soll ich nehmen? Danke für eure...
Seite 2, 3 [Civic 92-95]von japanfreak
21
1.142
11.06.2006, 12:10
Lightning
 Mein Haus / Dein Haus
Hi, gestern wurde es offiziell. Das Grundstück für unseren Hausbau ist nun unser. Manche Premium-Mitglieder hatten es ja bereits mitbekommen, dass ich da dran war. Das ganze ist 715 m² groß und weitere 55 m² von einem Privatweg, aber der eher dem...
Seite 2 [Offtopic]von mgutt
18
2.441
23.09.2011, 20:31
mgutt
Haus ?
Haus habe ich nicht, sondern nur eine Laube. Bin aber damit auch zufrieden....
von buebchen
37
1.417
23.04.2012, 17:33
Rosenrot
Hypothek auf Haus
Hallo, ein Bekannter von mir überlegt derzeit, eine Hypothek auf sein Haus aufzunehmen und ich beschäftige mich gerade auch etwas mit dem Thema. Hat hier jemand Ahnung von dem Thema und kann den Kern nochmal auf den Punkt bringen? Ich habe öfter...
von Pflaumi
1
292
11.10.2011, 12:27
Kakaotrinker
Haus umbau
Da all meine Geschwistern nun außen Haus sind, dachten wir das ich jetzt dort einziehen. Wir wollen aus dem Haus zwei separat Wohnungen machen und ein Anbau machen. Ich such deshalb eine gute Freeware Software Hausbau/Umbau. Wenn ich schon mal...
[Offtopic]von memo-can
2
303
08.02.2012, 00:11
Virus27
Ein eigenes Haus
Hallo zusammen, ich hatte euch von meiner Freundin geschrieben, die im Kindergarten jedes Jahr die tollen Kinder-Partys ausrichtet. Sie ist jetzt auch schwanger und möchte mit ihrem Mann gerne ein eigenes Haus für die neue Familie haben. Die beiden...
von ChinaGirl
2
252
08.01.2013, 15:08
ChinaGirl
Autoradio im Haus benutzen
Hi Leute Ich hab ein kleines Problem. Ich möchte mir im Keller ein Radio einbauen und da ich noch ein Autoradio zuhause habe, soll es dieses werden . Die Stromversorgung will ich mit einem Universal Netzteil mit 12V hinbekommen,das dürfte...
von onkelkroete
1
900
03.02.2012, 16:58
Ralf
 Mein Haus mit Sketchup 2
Nachdem das Grundstück nun fest steht und mein erster Hausversuch mit Sketchup leider mangels Grundstücksgröße nicht umgesetzt werden kann jetzt mein 2....
[Offtopic]von mgutt
5
2.098
14.03.2012, 09:23
JDM_Joker
© 2004 - 2025 www.maxrev.de | Communities | Impressum |