» Haus-Grundrisse: Welchen findet Ihr besser?

"Ich bin kein Nazi, aber..."Neuen Thread eröffnenNeue Antwort erstellenWien: männliche Studienteilnehmer gesucht (OT)
<1
34101112>
AutorNachricht
General 

Geschlecht:
Fahrzeug: del sol eg2 DOHC V-TEC
Anmeldedatum: 23.03.2011
Beiträge: 2846
Wohnort: nähe simmern
31.03.2014, 15:55
zitieren

ich find den eg2 grundriss am besten^^
mach mal haus: davor verwirrt :D


pn
Administrator 

Name: Marc
Geschlecht:
Anmeldedatum: 28.08.2004
Beiträge: 52436
Wohnort: Lohmar


Meine eBay-Auktionen:
31.03.2014, 16:35
zitieren

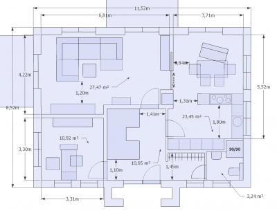
Ich präsentiere Variante 6:


Den größeren Eingangsbereich finde ich einfach zu verlockend, um ihn aufzugeben. Die Küche ist nun etwas großzügiger. Beim Esstisch habe ich nun die Bank / Stühle rangerückt, wie es im Alltag der Fall sein sollte.

Auch habe ich das in meinen Augen übergroße Gäste-Bad wieder auf V2 verkleinert, weil ich folgende Nachteile sehe:
  • schlauchig (das ist so als wäre das Klo in Mitte von einem Flur)
  • mal eben doppelt so viele Fliesen und Kacheln notwendig
  • beide Fenster bräuchten Sichtschutz
Halbiert, sehe ich folgende Vorteile:
  • eigene Nische für Garderobe (die damit auch versteckt ist und nicht im Flur selbst Platz weg nimmt)
  • großzügiger Flur / Empfangsbereich
Wie man sieht kann ich mich auch einfach nicht von der Schiebetür trennen. Meint Ihr nicht, dass das alles etwas offener macht?


 
erdgeschoss_variante6.png
erdgeschoss_variante6.png - [Bild vergrößern]


 3x  bearbeitet

Verfasst am: 31.03.2014, 16:47
zitieren

NUMMA EINSWas machst du denn dann mit Heizung, Waschmaschine, Trockner etc. wenn du keinen Keller hast?
verlagerst du das Arbeitszimmer ins nächste Stockwerk oder bist du dir nicht sicher ob du nen Keller brauchst oder nicht?
Jo, das Arbeitszimmer käme dann nach oben. Siehe hier:


ZitatNachtrag: Vorratsraum auch als HWR nutzbar fällt mir gerade auf, für Heizung, Waschmaschine...

Genau so ist das. Hauswirtschaftsraum, Vorrat und Heizung sind dann ein Raum. Nicht ideal, aber haben wir in der aktuellen Wohnung auch nicht wirklich anders. Der Keller steht nur wg. dem Geld zur Diskussion. 60.000,- EUR zahlen wir leider nicht aus der Portokasse.

Verfasst am: 31.03.2014, 16:51
zitieren

NUMMA EINSPS: 1,8m in der Küche find ich nun doch etwas übertrieben, nimm mal n Zollstock, 2 Stühle und stell den Platz mal so. das ist schon viel^^
Aber das kommt halt immer drauf an. wenn ihr 2 Kochfreaks seid, die regelmäßig zusammen/nebeneinander in der Küche stehen und sich die Arbeit teilen, dann ist es vllt doch angemessen^^
ansosnten dürften 1,4-1,5m dicke reichen aus meiner Sicht.

Ich wollte nur 1,2 m. Ihr habt mit mehr angefangen :D

Aber stimmt schon. Auf 1,5 m sollte ich schon reduzieren.

Verfasst am: 31.03.2014, 16:58
zitieren

NUMMA EINSalso ich hab bei mir ca. 5,5m Wandlänge, Abstand zum TV dann knapp 4,5-5m schätze ich.
Für mich ist das Ideal^^aber das ist ja Ansichtssache.
Die leere Fläche hast du ja auch so, bloß dann neben der Wohnlandschaft und nicht davor.

Du stellst wohl keinen Weihnachtsbaum auf oder.. zumindest wäre der dann beim Fernsehen hinderlich :hrhr:

Verfasst am: 31.03.2014, 17:13
zitieren

NUMMA EINSsagen wir du nimmst ca 1m-1,2m vom Wohnzimmer weg, sodass du dann ne länge von 5,32m-5,12m hast.
Selbst 1,2 m sind eigentlich zu wenig. 10 cm pro Wand, 30 cm für ein kleines Regal. Bleiben gerade noch 70 cm als Durchgang.

Unabhängig davon müsste man sich auch fragen, ob das Wohnzimmer nicht langsam zu klein wird. Ich würde das wenn nur machen, wenn kein Keller umgesetzt wird und wirklich Platzmangel absehbar ist. Nur wenn ich in der Küche 12 Elemente habe, wo ich jetzt nur 8 habe (davon 2 große Vorratsschränke), sehe ich da eigentlich keinen Bedarf.

Aber vielleicht lohnt sich ja der Versuch die Küche mit dem Essbereich zu tauschen und dann nur einen halben Vorratsraum zu realisieren.

ZitatWeiß aber nicht wie flexibel ihr das mit den Fenstern gestalten könnt/wollt.
Das können wir flexibel entscheiden. Ich dachte nur wenn die hinten symmetrisch sind, dann sieht das besser aus.
pn email
Junior 

Geschlecht:
Fahrzeug: '11 Impreza
Anmeldedatum: 07.09.2011
Beiträge: 79
Wohnort: 777**
31.03.2014, 20:33
zitieren

Jo Variante 6 sieht gut aus.

Wann können wir zur Einweihungsfete kommen?? ^^


pn
Fortgeschrittener 

Name: Markus
Geschlecht:
Fahrzeug: 6-Zylinder Boxer
Anmeldedatum: 15.06.2011
Beiträge: 107
Wohnort: Ludwigshafen
01.04.2014, 07:36
zitieren

Ich werf auch mal ein paar Ideen in den Raum:

Alle Vorschläge aufbauend auf V6....

1. Tür von der Küche zum Flur entfernen - Schafft Stauraum und gibt dir mehr Flexibilität.
--> Alternativ die Schiebetür zum Wohnzimmer wegfallen lassen und die Tür vom Flur zum Wohnzimmer durch einen offenen Bogen ersetzen. Eine Tür am oberen Ende der Treppe könnte dann die akustische Trennung übernehmen. So oder so, eine Tür zur Küche sollte ausreichen, denn Türen nehmen unglaublich viel effektiven Platz weg, da du ne komplette Wand verlierst.

2. Dachterrasse! Ich weiss nicht wie viele Kinder ihr plant, aber ich würde eines der beiden großen Zimmer im Obergeschoss zur Dachterrasse machen. Das hat für mich 2 große Vorteile: Weniger Kosten für die Dachkonstruktion und freier Blick in den Garten/auf die Terrasse. Das könnte euch evtl. dann auch genug sparen, dass ein Keller wieder realistisch wird.

3. Bauart der Treppe: Wenn du eine schwebende Treppe einsetzt (Also ohne Haltekonstruktion an den Seiten), ist die Treppe an sich als Garderobe sehr gut integrierbar. Dafür kann das Gästeklo weiter nach vorne Richtung Eingangstür rücken und da wo das Klo jetzt ist, gäbe es Raum für ein kleines Vorratsräumchen/Kühlraum/Whatever. Mit Keller wird das natürlich nicht funktionieren, aber da lässt sich das immernoch so ähnlich lösen: Einfach in die Treppenlücke (in dem U) eine Garderobe einführen.

4. Denk mal drüber nach den Esstisch als integrierte Lösung mit der Küchenzeile zu bauen. Sollte nochmal gut Platz sparen und die Raumtechnisch andere Möglichkeiten eröffnen:

Urheber: http://www.nuss-moebelwerkstatt.de/

Grade bei den kleinen Grundflächen um die es hier geht sind Platzsparende Maßnahmen das absolut Wichtigste. Wenn du mit nem Einsatz von vllt 20.000 für die passenden Möbel genug Platz sparen kannst um locker auf nen Keller zu verzichten dürfte das monetär ne gute Lösung sein.
Btw: Mal drüber nachgedacht obs n kompletter Keller sein muss? Gibt ja immerhin auch die Variante mit der Teil-Unterkellerung...

mfg
Markus


pn
Administrator 

Name: Marc
Geschlecht:
Anmeldedatum: 28.08.2004
Beiträge: 52436
Wohnort: Lohmar


Meine eBay-Auktionen:
01.04.2014, 08:44
zitieren

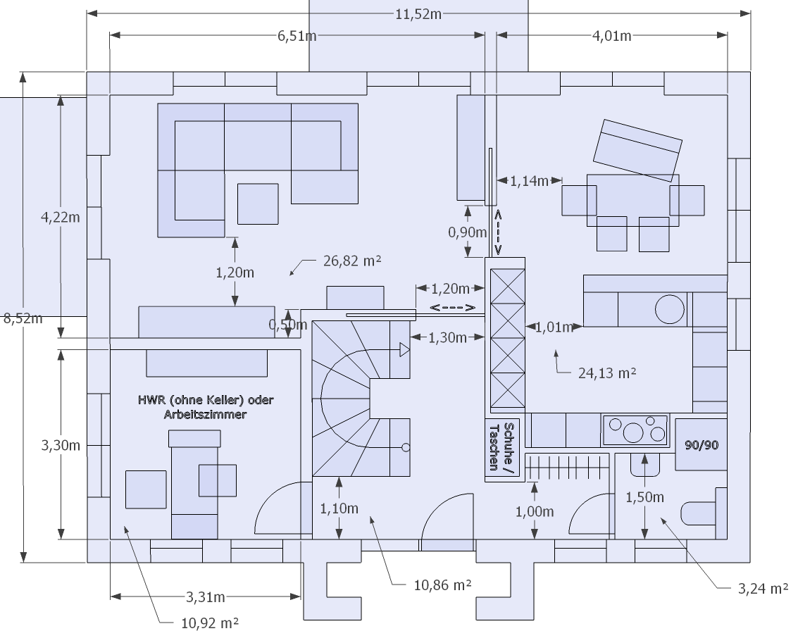
GERWildcat1. Tür von der Küche zum Flur entfernen - Schafft Stauraum und gibt dir mehr Flexibilität.
--> Alternativ die Schiebetür zum Wohnzimmer wegfallen lassen und die Tür vom Flur zum Wohnzimmer durch einen offenen Bogen ersetzen. Eine Tür am oberen Ende der Treppe könnte dann die akustische Trennung übernehmen. So oder so, eine Tür zur Küche sollte ausreichen, denn Türen nehmen unglaublich viel effektiven Platz weg, da du ne komplette Wand verlierst.

Unabhängig voneinander hatten wir die gleiche Idee. Variante 7 gefällt auch meiner Frau sehr gut:


Ob jetzt mit Torbogen oder Schiebetür lasse ich mal offen. Torbogen finde ich auch nicht schlecht, aber zwei Türen als Schallschutz sind einfach besser. Denk auch z.B. an das Kind, das Angst im Dunkeln hat und die Türe auf lassen will. Wenn man da Besuch hat, hat man gar keinen Schallschutz mehr und müsste flüstern.

Besonderer Clou: Es gibt noch einen Einbauschrank im Flur, wo Schuhe, Handtaschen, Fahrradhelm, etc. Platz finden.

Einen Vorratsraum bräuchten wir hier evtl. nicht. Getränkekästen kämen in den HWR und ich habe nun 4 hohe Schränke (die mit dem Kreuz) in der Küche für Vorräte:


 
erdgeschoss_variante7.png
erdgeschoss_variante7.png - [Bild vergrößern]


 2x  bearbeitet

Verfasst am: 01.04.2014, 08:51
zitieren

GERWildcat2. Dachterrasse! Ich weiss nicht wie viele Kinder ihr plant, aber ich würde eines der beiden großen Zimmer im Obergeschoss zur Dachterrasse machen. Das hat für mich 2 große Vorteile: Weniger Kosten für die Dachkonstruktion und freier Blick in den Garten/auf die Terrasse. Das könnte euch evtl. dann auch genug sparen, dass ein Keller wieder realistisch wird.

Das dürfte teurer werden. Du muss die Geschossdecke abdichten und entsprechende Drainagen vorsehen. Dann hast Du links, rechts und zum Haus hin Wände. Also wo jetzt eine "Pappwand" die Zimmer trennt, hast Du dann auf einmal drei massive Außenwände, die dann auch noch alle außen noch gedämmt werden müssen + Fenster / Türen. Mal von der Statik abgesehen.

Ehrlich gesagt hätte ich da auch ein bisschen Schiss wg. Dichtigkeit. Oder meintest Du eine Dachterrasse mit Satteldach?

Ich denke eine Gaube inkl. Balkon wäre die bessere Option. Das sieht dann exakt aus wie hier (die Idee hatte ich auch schon, ist aber auch ein Kostenfaktor):
http://www.kern-haus.de/haeuser/familienhaeuser/k05-002_signum_plus/detail/_13.97.html


Wie man sieht hat man dann auch gleich eine überdachte Terrasse und der Blick Richtung Wald, weshalb ich das schon sehr gerne hätte ;)

 5x  bearbeitet
pn email
Gast 
21.08.2015, 05:53
zitieren

Mach mit!

Wenn Dir die Beiträge zum Thread "Haus-Grundrisse: Welchen findet Ihr besser?" gefallen haben oder Du noch Fragen hast oder Ergänzungen machen möchtest, solltest Du Dich gleich bei uns anmelden:



Registrierte Mitglieder genießen die folgenden Vorteile:
✔ kostenlose Mitgliedschaft
keine Werbung
✔ direkter Austausch mit Gleichgesinnten
✔ neue Fragen stellen oder Diskussionen starten
✔ schnelle Hilfe bei Problemen
✔ Bilder und Videos hochladen
✔ und vieles mehr...


Neuen Thread eröffnenNeue Antwort erstellen
<1
34101112>
Ähnliche BeiträgeRe:
Letzter Beitrag
Welchen Accord findet ihr "besser"? -> mobile.de-Links
Hallo, ich interessiere mich momentan für nen Familienauto.. tja, wer hätte das mal gedacht^^ Nun schaue ich halt etwas umher und bei der Marke HONDA denke ich an Accord und Legend. Zum Legend weiß ich quasi nichts.. da würde ich einen kaufen und...
Seite 2 [Accord ab 2008]von s-lab
12
834
05.10.2016, 10:43
s-lab
Welche Mattenkombi findet ihr besser?
Welche Mattenkombi findet ihr besser? Das ist ein Layout für Schwarze Fußmatten, mit Roter Umkettelung. Die Mitive werden Rot aufgeflockt. Die Kathügel-Matte unten am Bild ist ein Fake, da diese beim Beflocker schon liegt. Es dient nur zur groben...
[S2000]von lost-in-emotions
9
547
21.05.2006, 17:22
Chris 1985
 welche front findet ihr besser?
so leute jetzt hab ich mitlerweile mein auto fast lackierfertig vorbereitet , ein problem hab ich aber immer noch . welche front soll ich nehmen? Danke für eure...
Seite 2, 3 [Civic 92-95]von japanfreak
21
1.207
11.06.2006, 12:10
Lightning
 Mein Haus / Dein Haus
Hi, gestern wurde es offiziell. Das Grundstück für unseren Hausbau ist nun unser. Manche Premium-Mitglieder hatten es ja bereits mitbekommen, dass ich da dran war. Das ganze ist 715 m² groß und weitere 55 m² von einem Privatweg, aber der eher dem...
Seite 2 [Offtopic]von mgutt
18
2.499
23.09.2011, 20:31
mgutt
Haus ?
Haus habe ich nicht, sondern nur eine Laube. Bin aber damit auch zufrieden....
von buebchen
37
1.417
23.04.2012, 17:33
Rosenrot
Hypothek auf Haus
Hallo, ein Bekannter von mir überlegt derzeit, eine Hypothek auf sein Haus aufzunehmen und ich beschäftige mich gerade auch etwas mit dem Thema. Hat hier jemand Ahnung von dem Thema und kann den Kern nochmal auf den Punkt bringen? Ich habe öfter...
von Pflaumi
1
292
11.10.2011, 12:27
Kakaotrinker
Ein eigenes Haus
Hallo zusammen, ich hatte euch von meiner Freundin geschrieben, die im Kindergarten jedes Jahr die tollen Kinder-Partys ausrichtet. Sie ist jetzt auch schwanger und möchte mit ihrem Mann gerne ein eigenes Haus für die neue Familie haben. Die beiden...
von ChinaGirl
2
252
08.01.2013, 15:08
ChinaGirl
Haus umbau
Da all meine Geschwistern nun außen Haus sind, dachten wir das ich jetzt dort einziehen. Wir wollen aus dem Haus zwei separat Wohnungen machen und ein Anbau machen. Ich such deshalb eine gute Freeware Software Hausbau/Umbau. Wenn ich schon mal...
[Offtopic]von memo-can
2
322
08.02.2012, 00:11
Virus27
Autoradio im Haus benutzen
Hi Leute Ich hab ein kleines Problem. Ich möchte mir im Keller ein Radio einbauen und da ich noch ein Autoradio zuhause habe, soll es dieses werden . Die Stromversorgung will ich mit einem Universal Netzteil mit 12V hinbekommen,das dürfte...
von onkelkroete
1
925
03.02.2012, 16:58
Ralf
 Mein Haus mit Sketchup 2
Nachdem das Grundstück nun fest steht und mein erster Hausversuch mit Sketchup leider mangels Grundstücksgröße nicht umgesetzt werden kann jetzt mein 2....
[Offtopic]von mgutt
5
2.157
14.03.2012, 09:23
JDM_Joker
© 2004 - 2026 www.maxrev.de | Communities | Impressum |