» Welche Aufteilung im Badezimmer?

Haus-Zufahrt - Höhenunterschied wie ausgleichen?Neuen Thread eröffnenNeue Antwort erstellenChemie-Unterricht, wie es ihn wohl in Deutschland niemals geben würde
<1
3>
AutorNachricht
Administrator 

Name: Marc
Geschlecht:
Anmeldedatum: 28.08.2004
Beiträge: 52434
Wohnort: Lohmar


Meine eBay-Auktionen:
23.09.2014, 13:05
zitieren

7.)

 
2014-09-23 14_31_25-m310_149.skp - SketchUp.png
2014-09-23 14_31_25-m310_149.skp - SketchUp.png - [Bild vergrößern]



Verfasst am: 23.09.2014, 13:18
zitieren

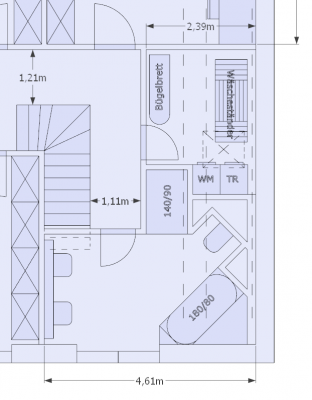
8.) Nur ein Upgrade von 7.) in dem ich die Waschmaschine und den Trockner in die Wand packe (Kopffreiheit?). Das DFF über der Toilette braucht man nicht, daher habe ich es weg gemacht.

 
2014-09-23 15_15_22-m310_149.skp - SketchUp.png
2014-09-23 15_15_22-m310_149.skp - SketchUp.png - [Bild vergrößern]
pn email
Premium-Member 

Anmeldedatum: 08.05.2009
Beiträge: 6175
23.09.2014, 17:06
zitieren

Ich meine:
Nimm variante 1 und drehe die badewann um 90 grad nach rechts.


pn
Administrator 

Name: Marc
Geschlecht:
Anmeldedatum: 28.08.2004
Beiträge: 52434
Wohnort: Lohmar


Meine eBay-Auktionen:
23.09.2014, 17:38
zitieren

albiknalltueteIch meine:
Nimm variante 1 und drehe die badewann um 90 grad nach rechts.

Das würde dann so aussehen9.)


 
2014-09-23 19_33_38-m310_150.skp - SketchUp.png
2014-09-23 19_33_38-m310_150.skp - SketchUp.png - [Bild vergrößern]



Verfasst am: 23.09.2014, 17:38
zitieren

Ich werfe noch 10.)

 
2014-09-23 19_28_46-m310_150.skp - SketchUp.png
2014-09-23 19_28_46-m310_150.skp - SketchUp.png - [Bild vergrößern]

Verfasst am: 23.09.2014, 17:38
zitieren

und 11.) dazu:

 
2014-09-23 19_28_53-m310_150.skp - SketchUp.png
2014-09-23 19_28_53-m310_150.skp - SketchUp.png - [Bild vergrößern]

Verfasst am: 24.09.2014, 08:12
zitieren

1.) ist der Favorit meiner Frau:


10.) ist mein Favorit:


Ich mag meine Variante lieber, weil:
+ die Dusche ohne Tür / Glas auskommt
+ der HWR größer ist

Wobei man die Dusche auch mit oder ohne Glas machen könnte:


 
2014-09-24 10_00_07-m310_151.skp - SketchUp.png
2014-09-24 10_00_07-m310_151.skp - SketchUp.png - [Bild vergrößern]


 
2014-09-24 10_10_58-m310_152.skp - SketchUp.png
2014-09-24 10_10_58-m310_152.skp - SketchUp.png - [Bild vergrößern]

Verfasst am: 24.09.2014, 11:41
zitieren

12.) ginge auch noch, aber nur wenn man die bodentiefe Dusche über dem Flur positionieren kann:

 
2014-09-24 13_40_25-m310_153.skp - SketchUp.png
2014-09-24 13_40_25-m310_153.skp - SketchUp.png - [Bild vergrößern]
pn email
General 

Geschlecht:
Fahrzeug: CRX DEL SOL
Anmeldedatum: 16.01.2010
Beiträge: 2691
Wohnort: Neuwied
24.09.2014, 11:42
zitieren

etwas grob weil ich nicht weiß wie deine dachschräge geht, aber um sich ein bild zu machen reichts denke ich

edit: links bleiben 2 Waschbecken, rechts zwischen dusche und Wanne ist das klo.

edit2: vergiss es wieder, in der dusche wird es zu dunkel sein :D


 
2014_09_23_14_52_04_m310_149skp__sketchup.png
2014_09_23_14_52_04_m310_149skp__sketchup.png - [Bild vergrößern]


 3x  bearbeitet

Verfasst am: 24.09.2014, 12:05
zitieren

noch ein versuch
das Klo kannste hierbei im Prinzip stellen wie du willst


 
2014_09_24_13_40_25_m310_153skp__sketchup.png
2014_09_24_13_40_25_m310_153skp__sketchup.png - [Bild vergrößern]
pn
Gast 
24.09.2014, 17:08
zitieren

Mach mit!

Wenn Dir die Beiträge zum Thread "Welche Aufteilung im Badezimmer?" gefallen haben oder Du noch Fragen hast oder Ergänzungen machen möchtest, solltest Du Dich gleich bei uns anmelden:



Registrierte Mitglieder genießen die folgenden Vorteile:
✔ kostenlose Mitgliedschaft
keine Werbung
✔ direkter Austausch mit Gleichgesinnten
✔ neue Fragen stellen oder Diskussionen starten
✔ schnelle Hilfe bei Problemen
✔ Bilder und Videos hochladen
✔ und vieles mehr...


Neuen Thread eröffnenNeue Antwort erstellen
<1
3>
Ähnliche BeiträgeRe:
Letzter Beitrag
Kleinanzeigen Aufteilung
so nach dem ganzen spam.... :hrhr: lol mal wieder etwas konstruktives. immer wieder werden in den verschiedenen honda modellbezogenen bereichen wie civic, accord usw... such bzw biete anzeigen eingestellt. es wird sich ja nicht vermeiden...
[Ankündigungen]von sparky-spike
4
182
13.01.2006, 17:10
sparky-spike
Autoradio im Badezimmer
Hallo, ich habe ein Autoradio in die Badvorwand eingebaut. Ein ATX 400 Watt Netzteil dient als Stromversorgung. Das ist an den Lichtschalter angeschlossen. :yes: Das Problem ist, Lichtschalter aus - kein Dauer-plus. :( Alle Programmierungen im...
von boemark
11
2.828
21.12.2010, 10:34
error
Sichtschutz im Badezimmer
Hallo ins Forum, ich siche im Moment nach einem guten Sichtschutz fürs Badezimmer. Leider habe ich dort aktuell keine Möglichkeit, mich gegen Blicke von außen zu schützen, da wir leider kein Milchglas im Fenster haben. Muss daher immer ein großes...
von inselmom
1
106
22.09.2015, 14:55
Solusar
 Sonos Play:1 ist jetzt verfügbar (für Badezimmer, Playbar 5 Ghz etc.)
Mit einer Bohrung für die Wandmontage und Feuchtigkeitsbeständigkeit, so dass man die Box auch im Badezimmer aufhängen kann: http://www.amazon.de/Sonos-Play-1-All-in-one-Player-wei%C3%9F/dp/B00FSCNLME/r Der Stromanschluss ist unten, so dass man den...
[Musik]von mgutt
2
1.491
14.10.2013, 14:07
mgutt
 neue Aufteilung Civic & Auflösung des "Abgezogen!"-Forums
Hallo, auf Grund einer Diskussion haben wir beschlossen den Civic-Bereich neu aufzuteilen, um mehr Übersicht in den Bereich zu bringen. In wie weit das Type-R Forum aufgelöst wird steht noch aus . Weiterhin wurde das "Abgezogen!"...
Seite 2, 3 [Ankündigungen]von mgutt
28
4.233
05.12.2007, 19:09
mgutt
neue Aufteilung "Allgemein" und "Café"
Langsam nervt es ein wenig was das Verschieben der Themen anbelangt. Das liegt hautpsächlich daran, dass viele Themen im Allgemeinen Bereich erstellt werden, die da eigentlich nicht hingehören. Um dem Einhalt zu gebieten dachte ich an folgende...
[Ankündigungen]von mgutt
6
787
04.09.2007, 11:27
Chris 1985
Welche 16" Stahlfelgen Passen auf Civic EP2 bzw EP3 / Welche ET
Hallo zusammen, Ich habe einen Civic EP2, mit einer EP3 Bremsanlage drin, jetzt wollte ich mal fragen welche 16" Stahlfelgen auf den Civic EP3 bzw. meinen EP2 mit EP3 Bremsanlage passen. Welche ET müssen die Felgen haben, die Originalen 15"...
[Civic 01-05]von MR2-racer
4
638
21.10.2012, 11:26
MR2-racer
 B16A2 - ITBs - welche Nocken - welche Kolben ?
Hallo zusammen. Wie manche vielleicht wissen, baue ich einen B16A2 mit ITBs von einer Honda CBR 1000 auf. Bisher habe ich den kompletten Kopf zerlegt, neue Schaftdichtungen von Supertech verbaut, die Ventile gereinigt, poliert und neu eingeschliffen,...
Seite 2 [Performance]von EnZyMe
16
1.253
03.11.2016, 15:07
EnZyMe
Prelude BB1 4WS welche Felgen? welche Reifen was geht?
Hey wollte mal fragen was ich an meinem Prelude so an maximum an reifen breite und felge machen kann ? Ich hab noch nicht gebörtelt hab aber ein Nutenvertellbares Fahrwerk auch mit härte verstellbar. So jetzt wollte ich fragen was geht an Maximum ohne zu...
[Prelude]von SNEJ
0
575
27.05.2011, 11:07
SNEJ
  Welche (Sport)-Reifen und welche Dimension auf dem Integra?
Hallo zusammen! Ich möchte meinem Integra neue Reifen gönnen, vielleicht könnt ihr mir da weiterhelfen? Ich fahre 15"x6,5 Felgen ! Z.z. mit der OEM Bereifung von 195/55 R15 - Was natürlich eine relativ große Seitenwand des Reifen mit sich...
Seite 2, 3 [Performance]von mx-ryd3r
23
1.314
17.06.2013, 18:09
typeR1979
© 2004 - 2025 www.maxrev.de | Communities | Impressum |