» Küchengrundriss: Wohin mit Spüle, Kochfeld, Wand etc.

Wie tief sollte die Küchen-Arbeitsplatte sein?Neuen Thread eröffnenNeue Antwort erstellenSuche Leute Aus Langenhagen/Hannover mit 2x ed- CIVIC + 1 RoterEK4
AutorNachricht
Administrator 

Name: Marc
Geschlecht:
Anmeldedatum: 28.08.2004
Beiträge: 52436
Wohnort: Lohmar


Meine eBay-Auktionen:
28.05.2014, 13:38
zitieren

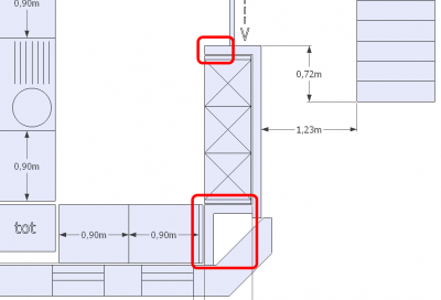
Hier die aktuell letzte Variante mit Schiebetür und 75 cm tiefer Arbeitsplatte. Die rechte Wand wurde möglichst weit nach links verschoben, so dass ich nun 1,23 m Abstand zur Treppe habe. Mehr geht denke ich nicht, weil ich die unteren Fenster nicht verschieben kann und neben dem Fensterausschnitt bis zur Wand denke ich noch Platz berücksichtigt werden muss (da habe ich 15 cm vorgesehen).

Bei der Position von Spüle und Kochfeld bin ich unsicher. Würdet Ihr die Insel komplett frei lassen (so hatte ich das vorher)? Der Küchenplaner störte sich bei der letzten Variante am zu kurzen Abstand zwischen Spüle (unten) und Kochfeld (links), weil man da ja in der Regel am meisten arbeitet.


 
2014-05-28 15_29_35-m310_121.skp - SketchUp.png
2014-05-28 15_29_35-m310_121.skp - SketchUp.png - [Bild vergrößern]



Verfasst am: 28.05.2014, 13:51
zitieren

Die Frage ist auch ob man den Hochschrank-Block komplett ummauert oder nicht

 
2014-05-28 15_50_33-m310_122.skp - SketchUp.png
2014-05-28 15_50_33-m310_122.skp - SketchUp.png - [Bild vergrößern]

Verfasst am: 29.05.2014, 10:13
zitieren

Ich habe in einer ersten 3D Version festgestellt, dass man den Block in die Wand fassen muss. Das sieht sonst total blöd aus. So sieht das dann im Ergebnis aus und das ist schon schick:

 Mit ALNO Küchenplaner erstellt

2014-05-29 12_12_59-ALNO AG _ Küchenplaner  __  C__Users_xps15_Desktop_PLAN3.KPL.png
2014-05-29 12_12_59-ALNO AG _ Küchenplaner __ C__Users_xps15_Desktop_PLAN3.KPL.png - [Bild vergrößern]

Verfasst am: 29.05.2014, 10:15
zitieren

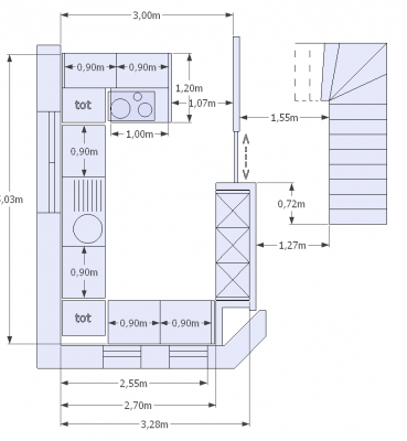
Dabei ist mir dann auch aufgefallen, dass die Hochschränke ja gar nicht 60 cm tief sind, sondern 56 cm. ca. 2 cm habe ich dann noch für eine Tür berücksichtigt. Außerdem ist mir aufgefallen, dass ich die Blocknische ja gar nicht verputzen lassen muss. Wieder 2,5 cm gespart. So wächst nun langsam der Flur. Das Kochfeld habe ich ein paar cm nach links verschoben, damit Pfannengriffe nicht versehentlich angestoßen werden. Ergebnis:

 
2014-05-29 12_07_56-m310_122.skp - SketchUp.png
2014-05-29 12_07_56-m310_122.skp - SketchUp.png - [Bild vergrößern]
pn email
Gast 
29.05.2014, 10:15
zitieren

Mach mit!

Wenn Dir die Beiträge zum Thread "Küchengrundriss: Wohin mit Spüle, Kochfeld, Wand etc." gefallen haben oder Du noch Fragen hast oder Ergänzungen machen möchtest, solltest Du Dich gleich bei uns anmelden:



Registrierte Mitglieder genießen die folgenden Vorteile:
✔ kostenlose Mitgliedschaft
keine Werbung
✔ direkter Austausch mit Gleichgesinnten
✔ neue Fragen stellen oder Diskussionen starten
✔ schnelle Hilfe bei Problemen
✔ Bilder und Videos hochladen
✔ und vieles mehr...


Neuen Thread eröffnenNeue Antwort erstellen
Ähnliche BeiträgeRe:
Letzter Beitrag
 Grill den Henssler Kochfeld?
Welche Marke ist das? Ich mag diese neuen Touch-Teile nicht und da gibt es so etwas wie...
[Offtopic]von mgutt
1
1.248
17.05.2015, 22:30
mgutt
Civic an die Wand
Hi hab ne lustige Idee... und zwar möchte ich bei mir im Wohnzimmer die Front von nem Civic EG an die Wand machen also Stoßstangen, Scheinwerfer und Stück Kotflügel und Motorhaube... Blöde Frage: Hat das schon mal jemand gemacht und habt ihr Tips damit...
Seite 2 [Offtopic]von chrischi1984
13
459
01.04.2009, 07:46
chrischi1984
 Bruce Lee an die Wand geschlagen
:D http://www.youtube.com/watch?v=CbvSms-1yj4...
[Grafik & Fakes]von mgutt
8
618
13.04.2007, 19:14
Electric
Prelude Wand Tattoo
kennt das schon einer von euch. http://www.ebay.de/itm/Wandtattoo-Honda-Prelude-Hammer-Teil-/190640845335?pt=LH_DefaultDomain_77&var=&hash=item2c63147217 falls ihr noch andere sachen wie schlüsselanhänger, klodeckel u.s.w. wisst dann her mit den...
[Prelude]von chevronseven
5
294
20.03.2013, 11:03
*Coyote*
Tips für eine GFK wand :)
Servus, ich weiß das Thema geht zwar am Tuning etwas vorbei aber vlt könnt ihr mir trotzdem helfen :) Ich habe vor eine Wand in Bruchsteinoptik aus GFK zu bauen und wollte mir ein paar Tipps holen ob mein Vorhaben umsetzbar bzw. möglich ist. Ich...
Seite 2 [Spachteln, Schleifen & Lackieren]von ICEMAN159
12
553
24.05.2013, 00:35
Swidy
 Google Calendar für an die Wand (Display mit Touch?!)
Hi, folgende Situation: Man hat einen Kalender, den die ganze Familie nutzt. Geburtstage sind drin, Termine usw. Man kennt das ja. Meist im Bereich der Küche irgendwo an die Wand getackert. Heutzutage geht das natürlich digital. Über Smartphone,...
Seite 2 [Computer & Spiele]von mgutt
11
6.387
07.08.2012, 14:04
exinax
[Biete] [Ebay] LED Videowall - Videowand - LED Wand - LED De
Video Wall - Videowand - LED Wand - LED Decke unendlich viele Eimsatzmöglichkeiten dank einzelnen Modulen! Zum Verkauf stehen hier 218 LED Videopanels (ca. 20 m2 Fläsche) + 37 Vorschaltgeräte (Trafos) und der dazugehörige HUB (Videoverteiler)...
von Scotty01
0
3.079
20.06.2010, 15:14
Scotty01
 Sandige/bröselige Wand: Dübel dreht mit!
Hi, wir haben in einem Altbau versucht einen Dübel in der Wand zu platzieren. War auch relativ feste drin, also mit ging nur mit leichten Hammerschlägen rein. Die Schraube reindrehen ging auch soweit, aber als wir dann Zug drauf machen mussten, um den...
Seite 2, 3 [Offtopic]von mgutt
23
21.071
20.05.2012, 09:17
mgutt
Frage von einem, der mit dem Rücken zur Wand steht.
Hallo Forum, ich bin mit meinen Finanzen ziemlich am Ende. Und hoffe, eventuell hier einen guten Ratschlag zu bekommen, was ich noch machen kann, zumal einige hier ziemlich erfahren zu sein scheinen. Damit meine Situation klar wird, werde ich mal...
[Geld & Finanzen]von gandalf11
6
651
03.05.2012, 15:38
gandalf11
 Heut mal meinen Domokun anne Wand gebracht
Da mich am We de langeweile gepackt hatte hab ich mir mal n domo anne wand gemalert :D ...
[Allgemein]von chrischi1984
5
496
26.10.2010, 15:08
chrischi1984
© 2004 - 2026 www.maxrev.de | Communities | Impressum |